咨詢熱線
021-56037469
021-56381771
021-56318899
021-56325777參數范圍 |
流量:4.05~92(m3/h) |
揚程:15~45(m) |
溫度:15℃~105℃ |
壓力:≤1.6(Mpa) |
泵軸:45鋼 |
泵體、端蓋、葉輪:玻璃鋼 |
機械密封:石墨,碳化鎢/硅,硬質合金 |
產品概述:
| 品牌 | 帕特 | 產地 | 上海 |
| 吸入方式 | 單吸 | 泵軸位置 | 立式 |
| 材質 | 45鋼,玻璃鋼 | 連接方式 | 法蘭 |
| 介質 | 非氧化性酸(鹽酸、稀硫酸、磷酸等)、鹽類溶液、水 | 葉輪數目 | 單級 |
| 葉輪結構 | 半開式 | 特性 | 防腐可替代含鉬鈦及鈦合金等貴重金屬 |
SY型泵為立式玻璃鋼液下泵。WSY型泵為立式玻璃鋼液下旋渦泵、FSY型泵為立式玻璃鋼液下離心泵。該泵因伸入貯罐、只要液體高于泵泵體,既可不灌液而起運送液,平蓋板下設有泄漏孔。液體不會向貯罐外泄漏。SY型、WSY型、FSY型玻璃鋼液下泵。該泵因伸入貯罐、只要液體高于泵體,既可不灌液而起送液體,平蓋下設有泄漏孔。液體不會向貯罐外泄漏。
型號意義:
例:50 (W) F S Y - 35 A
A-葉輪外徑初次切割
35-揚程(m)
Y-液下泵
S-過流部件為玻璃鋼
F-離心式
W-旋渦式
50-排出口直徑(mm)
產品特點:
1、本泵要垂直安裝,將泵的平蓋板安裝在貯罐法蘭座上,開始運行前,先用手盤動聯軸器,檢查泵是否有卡阻現象,轉動是否靈活。
2、泵起動前只要貯罐中液體高于泵體即可開車,嚴禁無介質運轉和反向運轉(運轉方向要以泵的轉向牌一致),否則泵體內因缺泛液體潤滑而損壞軸襯。軸套,如發現有劇烈振動或異常聲音,立即停車檢查。
3、平時注意保養,經常檢查泵運行是否平穩,有無異常震動,注意更換彈性塊,定期補充更換軸承潤滑油。
產品用途:
本泵主要用于石化、冶煉、染料、印染、農藥、制藥、稀土、化肥等行業,在貯罐輸送不含懸浮固體顆粒,不易結晶,溫度不高于100℃的各種非氧化性酸(鹽酸、稀硫酸、甲酸、醋酸、丁酸)等腐蝕介質必不可少的設備。
性能參數表:
泵型號 | 流量(m3/h) | 揚程(m) | 轉數(r/min) | 功率(kw) | 液下長度(mm) |
SY40×32-20 | 6.3 | 20 | 2900 | 1.5-3 | 500~3000 |
SY50×40-20 | 12.5 | 20 | 2900 | 2.2-4 | 500~3000 |
SY65×50-20 | 25 | 20 | 2900 | 4-5.5 | 500~3000 |
25WSY-22 | 4.05 | 18 | 2900 | 2.2 | 500~3000 |
25WSY-30 | 6.48 | 20 | 2900 | 3 | 500~3000 |
40WSY-25 | 8.10 | 20 | 2900 | 4 | 500~3000 |
40FSY-22 | 15.84 | 18 | 2900 | 3 | 500~3000 |
40FSY-18 | 15.00 | 15 | 2900 | 2.2 | 500~3000 |
40WSY-50 | 8.64 | 45 | 2900 | 7.5 | 500~3000 |
40FSY-35 | 20 | 30 | 2900 | 4 | 500~3000 |
50FSY-35 | 45 | 32 | 2900 | 7.5 | 500~3000 |
50FSY-35A | 35 | 25 | 2900 | 5.5 | 500~3000 |
80FSY-35 | 92 | 29 | 2900 | 15 | 500~3000 |
80FSY-35A | 69 | 22 | 2900 | 11 | 500~3000 |
備注:性能參數表均只做參考,如需產品相關安裝圖等詳細參數說明書請致電:021-56386999。
安裝維修保養:
1、本泵要垂直安裝,將泵的平蓋板安裝在貯罐法蘭座上,開始運轉前,先用手發動聯軸器,檢查一下有否卡阻現象,轉動是否靈活。
2、泵起動前只要貯罐中液體高于泵體既可開車,嚴禁無介質運轉和倒轉,否則泵體內因缺乏液體潤滑而損壞軸襯、軸套、如發現有劇烈振動或異常聲音,立即停車檢查。
3、維修時,先將泵從貯罐上拆下,拆下電機及機座、拆下下泵殼,打掉下軸套及葉輪(注意泵軸上防腐層)松開上軸承座6只六角螺栓,然后把正條泵軸和軸承部件一起拉出即可進行檢修。
4、如更換軸承和泵軸時,先拆泵軸上端園螺母和聯軸節,松開上下軸承蓋12只螺釘,將軸承座向上打出即可。
5、檢修和更換易損件后進行重新裝配時、先將軸承座、軸承一起裝在泵軸上部,封好上下軸承蓋,裝好聯軸節和并緊固螺母,校正泵軸的彎曲度,將帶軸承座的泵軸向下插入泵體內,再將軸承座裝在中間座上,調正好葉輪與上下泵殼間隙,把葉輪及下軸套和葉輪并帽一起用酚醛膠泥粘在泵軸上、等酚醛膠泥完全固化后,才將下泵殼裝好。將配完畢后、用手在聯軸節上轉達一下泵軸是否正常。
6、平時注意保養,經常檢查泵運行是否平穩,有無異常震動,注意更換彈性塊,定期補充和更換上軸承潤滑油。
注意事項:
1、本泵要垂直安裝,將泵的下蓋板安裝在貯罐法蘭座上,開始運行前,先用手盤動聯軸器,檢查泵是有卡阻現象,轉動是否靈活。
2、泵起動前八要貯罐中液體高于泵體即可開車,嚴禁無介質運轉和反方向運轉(運轉方向要以泵的轉向牌一致),否則泵體內因缺泛液體潤滑而損壞軸襯、軸套、如發現有劇烈振動或異常聲音,.立即停車檢查。
3、平時注意保養,經常檢查泵運行是否平穩,有無異常震動,注意更換彈性塊,定期補充和更換軸承潤滑油。
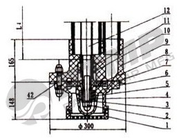
結構圖:


| 序號 | 名稱 | 序號 | 名稱 | 序號 | 名稱 | 序號 | 名稱 |
| 1 | 進口蓮蓬頭 | 12 | 上軸襯 | 23 | 中間座 | 34 | 六角螺母 |
| 2 | 葉輪并帽 | 13 | 泵軸 | 24 | 電動機機座 | 35 | 墊圈 |
| 3 | 葉輪墊片 | 14 | 密封座 | 25 | 軸承座 | 36 | 圓螺母 |
| 4 | 下軸套 | 15 | 密封填料 | 26 | 軸承 | 37 | 六角螺栓 |
| 5 | 下軸襯 | 16 | 壓蓋 | 27 | 上軸承壓蓋 | 38 | 墊圈 |
| 6 | 墊圈 | 17 | 底座 | 28 | 定距套 | 39 | 六角螺栓 |
| 7 | 下泵殼 | 18 | 彎頭墊片 | 29 | 泵聯軸節 | 40 | 防腐螺母 |
| 8 | 泵殼墊片 | 19 | 玻璃鋼彎頭 | 30 | 彈性塊 | 41 | 防腐墊片 |
| 9 | 葉輪 | 20 | 軸承下封蓋 | 31 | 電機聯軸節 | 42 | 雙頭螺柱 |
| 10 | 上泵體 | 21 | 油封 | 32 | 電動機 | ||
| 11 | 上軸套 | 22 | 軸承 | 33 | 六角螺栓 |
安裝尺寸圖:

安裝尺寸表:
| 泵型號 | W | M | H | D | DO | n-m |
| SY40*32-20 | 340 | 205 | 200 | 450 | 400 | 8-F6 |
| SY50*40-20 | 340 | 205 | 210 | 450 | 400 | 8-F6 |
| SY65*50-20 | 370 | 205 | 220 | 450 | 400 | 8-F6 |
| 25WSY-22 | 330 | 205 | 200 | 450 | 400 | 8-F6 |
| 25WFS-30 | 330 | 205 | 200 | 450 | 400 | 8-F6 |
| 40WSY-25 | 340 | 205 | 200 | 450 | 400 | 8-F6 |
| 40FSY-22 | 340 | 205 | 200 | 450 | 400 | 8-F6 |
| 40FSY-18 | 340 | 205 | 200 | 450 | 400 | 8-F6 |







